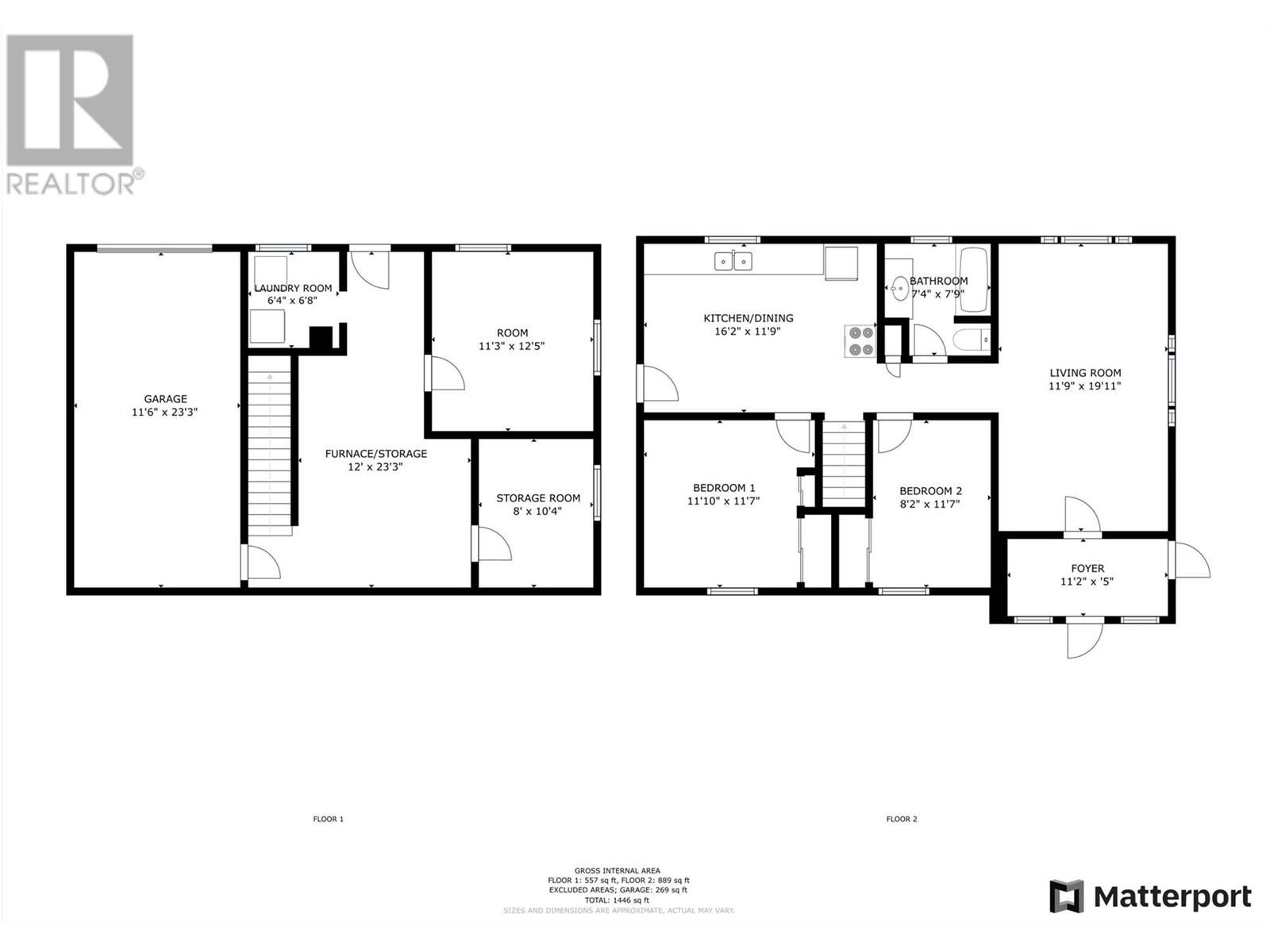
Riondel is the perfect end of the road community on Kootenay lake. If you are looking for a slower pace of life or a fantastic summer location this is it. This home features 2 bedrooms and a full bath on the main floor the walkout basement features a large bedroom a storage room and an old attached single garage. Needs some work, but is on a great lot in a great location and the price is right! Call your Realtor for an appointment Today! Quick possession is available (id:4069)
Address
1537 RUSSEL Avenue
List Price
$187,000
Property Type
Single Family
Type of Dwelling
Single Family
Style of Home
Ranch
Transaction Type
Sale
Area
British Columbia
Sub-Area
Riondel
Bedrooms
4
Bathrooms
1
Floor Area
1,446 Sq. Ft.
Lot Size
0.26 Ac.
Year Built
1952
MLS® Number
10340061
Listing Brokerage
Malyk Realty
Basement Area
Full
Postal Code
V0B2B0
Site Influences
Golf Nearby, View



























