Secluded on a 2-acre Waterfront oasis, this easy living 2-bedroom, 2-bathroom home offers an open concept layout, ample storage, and stunning river views. Wood burning stove to keep you cozy. Nestled deep in the trees for privacy, the property allows parking for multiple RVs on its non-zoned land. Enjoy the separate summer guest Park model cottage equipped with a wood burning stove to keep your guests comfortable all year round . You will have room for all your friends and family!! Fenced in garden with raised beds and fruit trees, a greenhouse and a root cellar, perfect to store all your harvest. There are also various outbuildings included with the property. Top highlights include the back deck overlooking the river and the impressive full outdoor kitchen by the water's edge. The peace and quiet this location has to offer, and the Privacy! With plenty of space to entertain friends and family, this charming retreat is perfect for creating everlasting memories and enjoying summer bliss. Only minutes from the boarder. Call your agent for an appointment today! (id:4069)
Address
6996 95 Highway
List Price
$485,000
Property Type
Single Family
Type of Dwelling
Single Family
Style of Home
Other
Transaction Type
Sale
Area
British Columbia
Sub-Area
Kingsgate
Bedrooms
2
Bathrooms
2
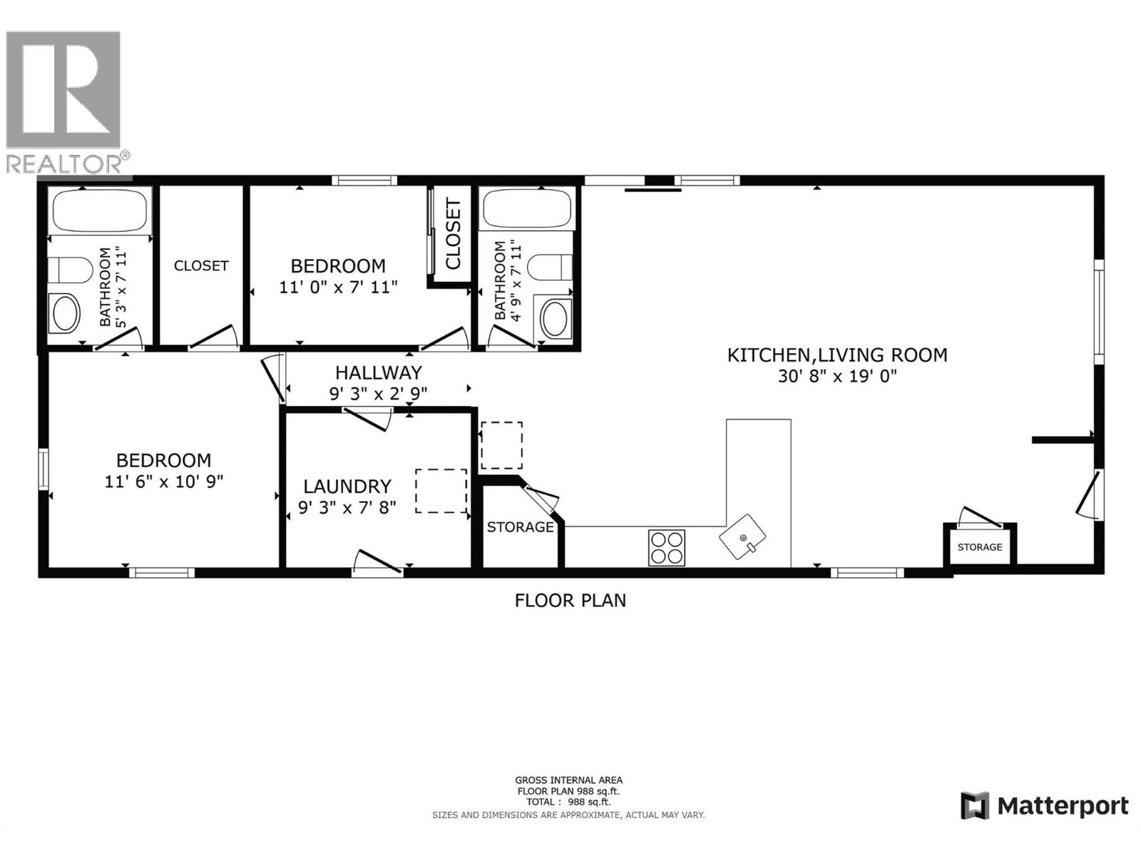
Floor Area
988 Sq. Ft.
Lot Size
2 Ac.
Year Built
2004
MLS® Number
10353213
Listing Brokerage
Malyk Realty
Postal Code
V0B1V1
Site Influences
Waterfront, View





























































